3070 Persimmon Valley LaneDickinson, TX77539
Due to the health concerns created by Coronavirus we are offering personal 1-1 online video walkthough tours where possible.




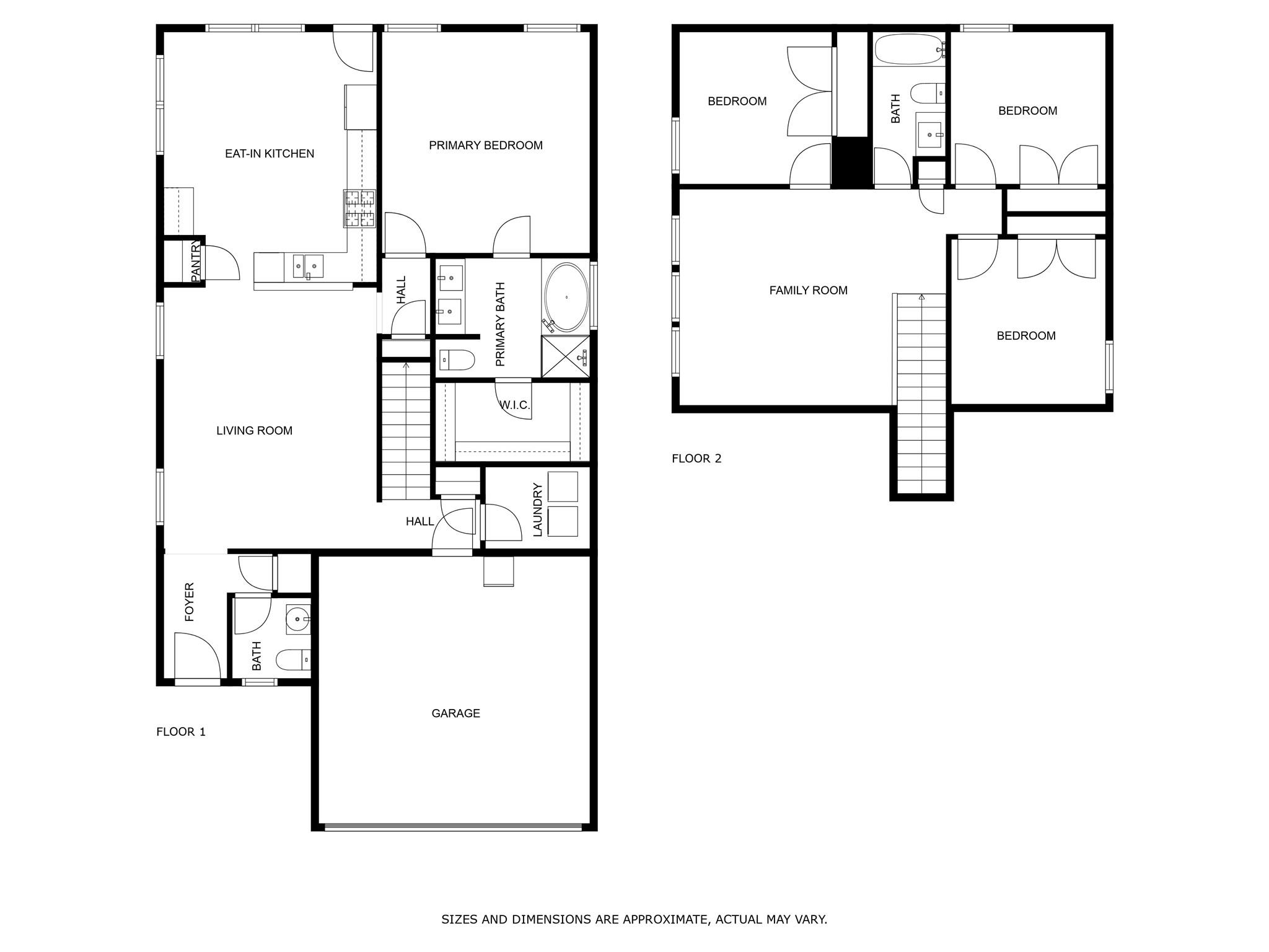
Beautiful 2-story, 4-bedroom, 2.5-bath home with NEW CARPET in bedrooms, stairs and gameroom, interior and exterior painted including baseboards and crown, all tile and grout professionally cleaned, EPOXIED garage floors and landscaping refreshed! This striking brick and stone elevation home in the desirable Enclave at Bay Colony offers a open floor plan with a large living area for entertaining. The spacious eat-in kitchen boasts granite countertops, a gas cooktop, coffee bar and gorgeous dark walnut cabinets—perfect for cooking and entertaining. Upstairs, enjoy a large gameroom ideal for movie nights or playtime as well as 3 large bedrooms and a secondary bathroom. You will also find dedicated attic storage space for all of those holiday decorations. The oversized backyard provides plenty of space for outdoor fun, gardening, or a swimming pool! And NO BACK NEIGHBORS - it doesn't get better than this! Located near schools, shopping, restaurants and easy highway access - a MUST SEE!
| 8 hours ago | Listing updated with changes from the MLS® | |
| 9 hours ago | Listing first seen on site |
IDX information is provided exclusively for consumers’ personal, non-commercial use. It may not be used for any purpose other than to identify prospective properties consumers may be interested in purchasing. This data is deemed reliable but is not guaranteed accurate by the MLS.
Data provided by HAR.com © 2026. All information provided should be independently verified.

Did you know? You can invite friends and family to your search. They can join your search, rate and discuss listings with you.