Save
Ask
Tour
Hide
Share
$249,999
2 Days On Site
18590 Cepagatti DriveNew Caney, TX77357
For Sale|Single Family Residence|Active
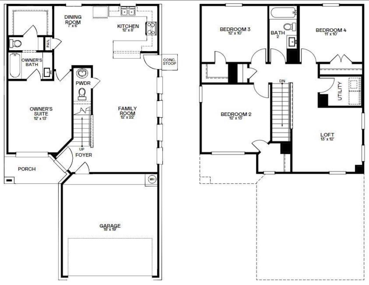
4
Beds
3
Total Baths
2
Full Baths
1
Partial Bath
1,851
SqFt
$135
/SqFt
2024
Built
Subdivision:
Tavola West
County:
Montgomery
Due to the health concerns created by Coronavirus we are offering personal 1-1 online video walkthough tours where possible.




Save
Ask
Tour
Hide
Share
Photos
Map
Nearby Listings
Discover the perfect blend of style and convenience in this 2024-built 2-story home. Featuring 4 bedrooms and 2.5 baths, this residence offers a bright, open layout and a private fenced yard ideal for outdoor living. Enjoy fantastic HOA amenities, including a resort-style community pool and scenic nature trails. Perfectly situated near major grocery stores and shopping, this home offers the modern lifestyle you've been looking for.
Save
Ask
Tour
Hide
Share
Listing Snapshot
Price
$249,999
Days On Site
2 Days
Bedrooms
4
Inside Area (SqFt)
1,851 sqft
Total Baths
3
Full Baths
2
Partial Baths
1
Lot Size
0.113 Acres
Year Built
2024
MLS® Number
5632761
Status
Active
Property Tax
$1,115
HOA/Condo/Coop Fees
$75 monthly
Sq Ft Source
N/A
Friends & Family
React
Comment
Invite
Recent Activity
| yesterday | Listing updated with changes from the MLS® | |
| 2 days ago | Listing first seen on site |
General Features
Acres
0.113
Attached Garage
Yes
Disclosures
Sellers Disclosure
Foundation
Slab
Garage
Yes
Garage Spaces
2
Parking
Attached
Parking Spaces
2
Property Sub Type
Single Family Residence
Sewer
Public Sewer
SqFt Total
1851
Style
Traditional
Water Source
Public
Interior Features
Cooling
Electric
Heating
Natural Gas
Save
Ask
Tour
Hide
Share
Exterior Features
Construction Details
BrickUnknownWood Siding
Lot Features
Cleared
Roof
Composition
Community Features
Association Dues
900
HOA Fee Frequency
Annually
MLS Area
40
School District
39 - New Caney
Schools
School District
39 - New Caney
Elementary School
New Caney Elementary School
Middle School
Keefer Crossing Middle School
High School
New Caney High School
Listing courtesy of JLA Realty [email protected]
IDX information is provided exclusively for consumers’ personal, non-commercial use. It may not be used for any purpose other than to identify prospective properties consumers may be interested in purchasing. This data is deemed reliable but is not guaranteed accurate by the MLS.
Data provided by HAR.com © 2026. All information provided should be independently verified.
IDX information is provided exclusively for consumers’ personal, non-commercial use. It may not be used for any purpose other than to identify prospective properties consumers may be interested in purchasing. This data is deemed reliable but is not guaranteed accurate by the MLS.
Data provided by HAR.com © 2026. All information provided should be independently verified.
Neighborhood & Commute
Source: Walkscore
Disclosure: Community information and market data powered by Constellation Data Labs. Information is deemed reliable but not guaranteed.
Save
Ask
Tour
Hide
Share

Did you know? You can invite friends and family to your search. They can join your search, rate and discuss listings with you.