Save
Ask
Tour
Hide
Share
$169,990
New Listing
20163 Green Mallard StreetCrosby, TX77532
For Sale|Single Family Residence|Active
3
Beds
3
Total Baths
2
Full Baths
1
Partial Bath
1,189
SqFt
$143
/SqFt
2025
Built
Subdivision:
Indian Springs
County:
Harris
Due to the health concerns created by Coronavirus we are offering personal 1-1 online video walkthough tours where possible.




Save
Ask
Tour
Hide
Share
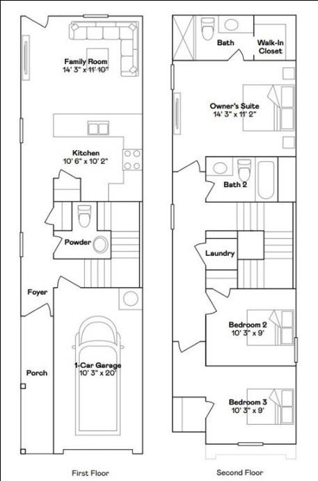
NEW! Lennar Wellton Collection "Baja" Plan with Elevation "C" in Indian Springs! This two-story home features a classic layout ideal for young families and working professionals. The living area is located on the primary floor and consists of a family room and fully-equipped kitchen. There are three bedrooms on the second level, including the spacious owner’s suite, which is situated at the back of the home for optimal privacy and comfort.
Save
Ask
Tour
Hide
Share
Listing Snapshot
Price
$169,990
Days On Site
0 Days
Bedrooms
3
Inside Area (SqFt)
1,189 sqft
Total Baths
3
Full Baths
2
Partial Baths
1
Lot Size
N/A
Year Built
2025
MLS® Number
87221373
Status
Active
Property Tax
N/A
HOA/Condo/Coop Fees
$62.5 monthly
Sq Ft Source
N/A
Friends & Family
React
Comment
Invite
Recent Activity
| 11 hours ago | Listing updated with changes from the MLS® | |
| 11 hours ago | Listing first seen on site |
General Features
Attached Garage
Yes
Disclosures
Other Disclosures
Foundation
Slab
Garage
Yes
Garage Spaces
2
Parking
Attached
Parking Spaces
2
Property Condition
Under Construction
Property Sub Type
Single Family Residence
SqFt Total
1189
Style
Traditional
Water Source
Public
Interior Features
Cooling
Electric
Heating
Natural Gas
Save
Ask
Tour
Hide
Share
Exterior Features
Construction Details
Cement Siding
Lot Features
Subdivided
Roof
Composition
Community Features
Association Dues
750
HOA Fee Frequency
Annually
MLS Area
1
School District
12 - Crosby
Schools
School District
12 - Crosby
Elementary School
Newport Elementary School
Middle School
Crosby Middle School (Crosby)
High School
Crosby High School
Listing courtesy of Lennar Homes Village Builders, LLC [email protected]
IDX information is provided exclusively for consumers’ personal, non-commercial use. It may not be used for any purpose other than to identify prospective properties consumers may be interested in purchasing. This data is deemed reliable but is not guaranteed accurate by the MLS.
Data provided by HAR.com © 2025. All information provided should be independently verified.
IDX information is provided exclusively for consumers’ personal, non-commercial use. It may not be used for any purpose other than to identify prospective properties consumers may be interested in purchasing. This data is deemed reliable but is not guaranteed accurate by the MLS.
Data provided by HAR.com © 2025. All information provided should be independently verified.
Neighborhood & Commute
Source: Walkscore
Disclosure: Community information and market data powered by Constellation Data Labs. Information is deemed reliable but not guaranteed.
Save
Ask
Tour
Hide
Share

Did you know? You can invite friends and family to your search. They can join your search, rate and discuss listings with you.